Southwinds Channel Reconstruction and Multiuse Pathway
About this project
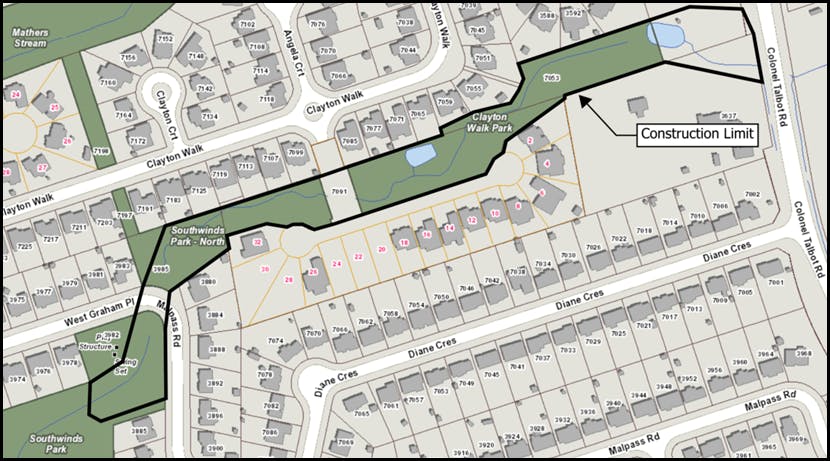
The City of London is reconstructing the Southwinds Channel (also known as Tributary 12) from Colonel Talbot Road to Southwinds Park, just west of Malpass Road. This project will include a new multiuse pathway adjacent to the channel, a new pedestrian crossing, new culverts to increase flow capacity beneath Isaac Drive and Malpass Road, and a complete reconstruction of the creek channel.
The main purpose of this City-led project is to alleviate existing and future flooding concerns for Tributary 12, as identified in the ‘Dingman Creek Subwatershed: Stormwater Servicing Study, Master Plan and Schedule B Municipal Class Environmental Assessment for Stage 1 Lands, Draft Phase 1 Report’ (Aquafor Beech, October 2020). The project will serve to create an improved naturalized and stable channel corridor to enhance the ecological environment for aquatic and terrestrial wildlife along with new recreational pathway connections and naturalized landscaping to enhance walkability and the public amenity space.
Learn more about this project by viewing the City's PowerPoint presentation.
Southwinds Channel green spaceProposed improvements
- Regrading and reconstructing channel alignment and slopes to prevent flooding and improve flow conveyance.
- Introduction of pocket wetlands for amphibians and other wildlife habitat
- Low flow channel constructed with deeper pools to support fish habitat
- New multiuse pathway through City lands from Clayton Walk to West Graham Place
- New pedestrian crossing from Clayton Walk to the southside of the channel
- New multiuse pathway/concrete sidewalk along Malpass Road from Southwinds Park South to the new pathway connection.
- New culverts beneath Isaac Drive and Malpass Road to increase flow capacity.
- Removal of invasive vegetation and restoration with plantings native to the London area
Construction impacts
Tree removal and replanting:
Significant tree removals are planned for early September 2021. Please be advised that the City makes every effort to preserve trees on all its projects. For this project, the Tree Assessment determined that it was not possible to meet the objectives of the channel design and retain the majority of trees. The Tree Assessment identified the need to remove mature trees to complete the work which includes both native and cultivated tree species, including Scots Pine, White Cedar, willow, and maple species. The area will likely appear stark in the short-term but will be replanted with native tree, shrub, and grass species to ensure full restoration of the natural environment in the medium to long-term.
Backyard disruptions:
During construction in the fall, residents will experience elevated levels of noise, dust, and general disruption for a period of approximately 10 weeks. Please be aware this will impact the enjoyment of outdoor space, particularly for backyards along the channel corridor. This project was specifically scheduled to commence in September in the City’s best efforts to avoid most of the summer recreation season. We appreciate your cooperation as we work to improve drainage and pathway amenities in your neighbourhood.
Transportation impacts:
The City is currently evaluating how pedestrians, motorists, cyclists and transit users could be impacted by this project. The culvert works at Malpass Road will require a closure/detour at Malpass Road and West Graham Place. At Isaac Drive residents will experience lane restrictions but access will be maintained.
Driveways are not anticipated to be disturbed by construction. Any driveways that are disturbed will be restored to the original condition.
Playground:
There will be no changes to playground structures and the playground will still be accessible during construction.
Ask a question
Please use the "Ask a question" form to ask any questions you have on the Southwinds Channel (Tributary 12) Reconstruction and Multiuse Pathway project.
Ask a question
Ask a question about the Southwinds Channel (Tributary 12) Reconstruction and Multiuse Pathway.

